Description
Description
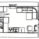
MV Stella C is a well-cared for and equipped example of the Ocean Alexander 40 DC (Double Cabin). Build from 1980 to 1980, the Ocean Alexander 40 Double Cabin was introduced in 1980 when fuel-efficient trawlers were extremely popular in the U.S. market. One of the better-quality imports of her era, she rides on a solid fiberglass, semi-displacement hull with hard chines, moderate beam, and a long keel for improved directional stability. The standard two-stateroom floorplan of the Ocean 40 is arranged with the galley to starboard in the salon and a walkaround queen bed in the aft cabin. A lower helm was standard and port and starboard doors in the salon provide convenient deck access. The Ocean Alexander 40 has an abundance of interior teak, giving her the classic nautical look. The engine room is very spacious with good all-around access. The 120hp Lehman diesel cruises the Ocean Alexander 40 DC at 7–8 knots with a cruising range of about 1000 miles.
MV Stella C can comfortably take you cruising around the Sea of Cortez and Pacific Mexico. Seeing these Cruising Classics in such great condition is a Joy and testament to the vessels current and prior owners.
Cruise Ready Gear and System Highlights:
* Ford Lehman 120Hp Fuel Efficient Diesel
* Original Teak Decks Removed and replaced with Awlgrip Non-skid in 2023
* Cabin Top and Super structure painted with Awlgrip 2024
* Onan 4.0KW Generator
* 300W of Solar easily runs ships Refrigeration
* 20GPH Village Marine Watermaker
* 16K BTU Air Conditioning
* 100A Balmar Alternator
* New Flybridge Bimini Canvas 2024
* Beautiful Teak Interior, build in the Days or Craftsmanship
* Transferable Slip in La Paz’s Primer Cruisers Marina
Systems and Gear
Propulsion & Mechanical
* 120Hp Ford Lehman Model 2715E, rebuilt in 2018 with 787hrs since rebuild (Original Hour Meter 3700hrs)
* Hurth Transmission
* 25″ 3-Blade Bronze Propeller
* Dual Helm Hydraulic Steering
* New Cutlass Bearing and Packing 2023
* BOW THRUSTER!
Electrical System
* 4.0KW Onan Generator with 518hrs
* 12v DC Low Voltage Service
* 120v AC Service
* Xantrex Inverter/Charger
* 300W of Solar with MPPT controller
* Ships Battery Bank new in 2022
* Separate Starting Battery for Motor and Generator
* 100A 12v DC Balmar Alternator
* Balmar MC-618 Regulator
* 30A Shore Power Service
Galley
* Force 10 3-Burner Range and Oven
* Propane Solenoid
* Microwave (120vAC)
* Double Stainless Sink
* Upright Freezer/Refrigerator (12v DC)
* Pressurized Hot/Cold fresh water at sink
Electronics
* Comnav Hydraulic Autopilot works well and recently serviced
* Garmin 176C Chart plotter and inside station (only Depth on flybridge)
* VHF Radio
* Stereo with Cabin and Flybridge speakers
* Current owner used Ipad for Navigation (Ipad not included with sale)
Tankage
* Two 200Gallon Diesel Tanks
* Two 50Gallon Water Tanks
Deck
* Ideal 12v Electric Anchor Windlass
* 65lb Delta Anchor
* Reported to be 150ft of Anchor Chain
* Original Teak Decks removed and replaced with Awlgrip non-skid
* Exterior Teak in Excellent condition and finished with Semco
* Aft Deck Propane BBQ
Ships Tender
* ABB RIB Hypalon Material Inflatable
* Electric Start Yamaha 15Hp Outboard
Misc Notes and Gear
* Last Haul out for bottom paint was Jan 2023
* Engine Heat exchanger recently cleaned and serviced
* Ships heads are electric Vacuflush
* Marine Air 16K BTU Air Conditioning


























































































































































